Piso alquilado 2 hab. Rentabilidad 2,9% sin comisiones
Barcelona - REF. 1253

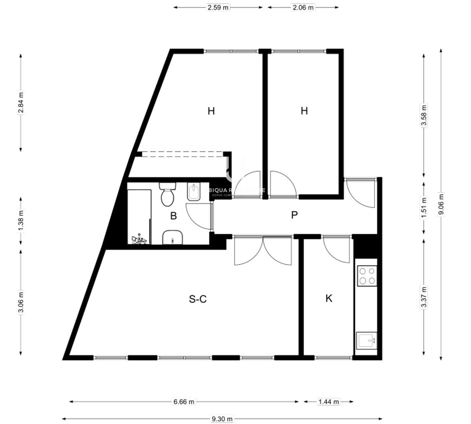
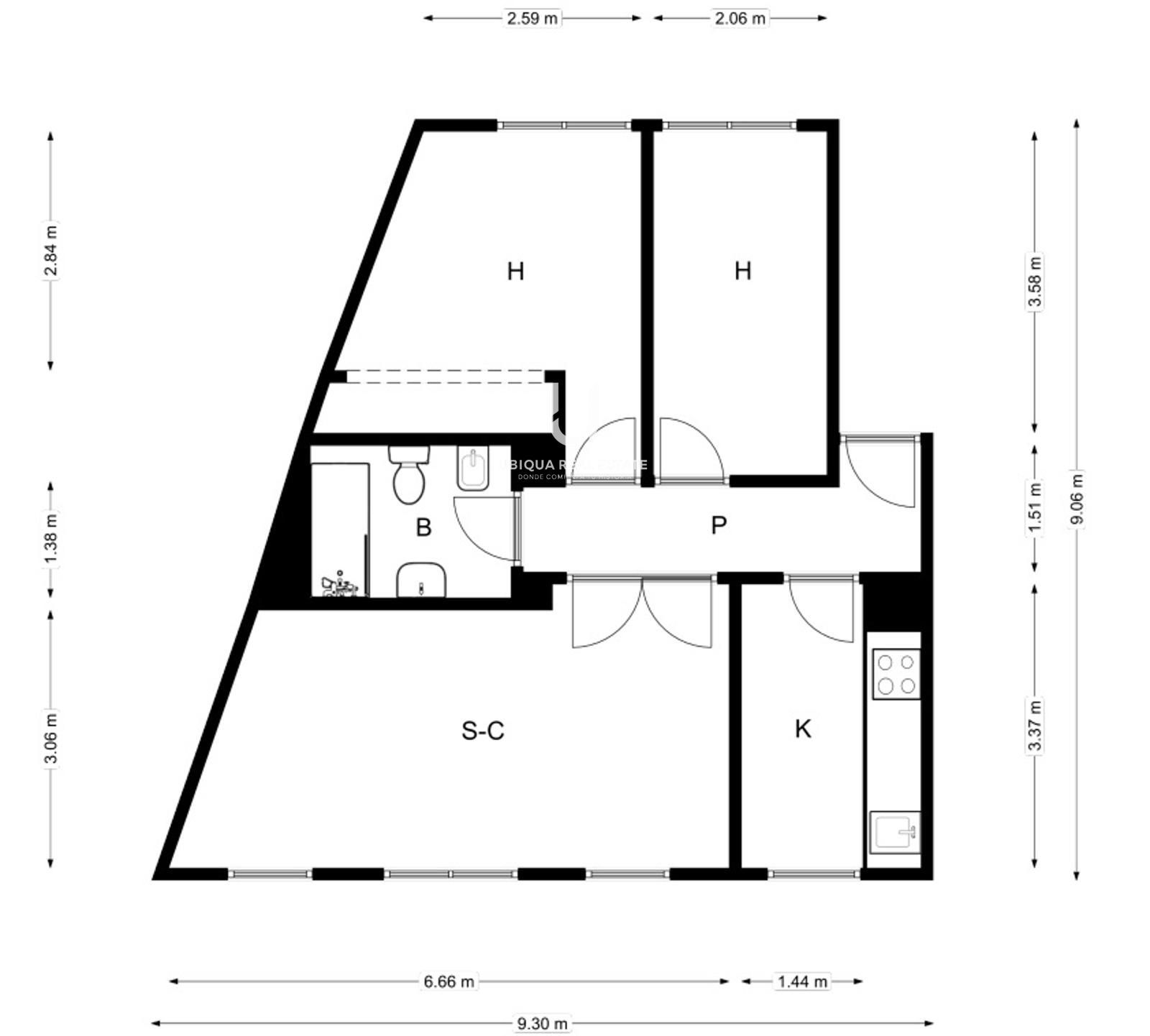
82 m2

2

1

4
venta: 385.000 €
Descripción

Excelente oportunidad de inversión en esta vivienda alquilada con inquilinos solventes y sin comisiones de agencia.

Características principales

Piso luminoso de 2 habitaciones y 1 baño, ubicado en la cuarta planta de un edificio bien conservado. Dispone de suelos de parquet en todas las estancias y sistema de climatización eficiente para confort todo el año.

Distribución y equipamiento

Se distribuye en salón-comedor, cocina independiente con electrodomésticos incluidos, 2 dormitorios dobles y baño completo. Los armarios empotrados aportan amplitud y practicidad al día a día.

Ubicación estratégica

En una zona residencial consolidada de Sants-Montjuïc, con excelentes comunicaciones por metro, bus y carretera. Todo tipo de servicios (supermercados, colegios, centros médicos, ocio) a pocos minutos a pie.

Inversión segura

Actualmente alquilada con contrato vigente hasta 29/11/2027, generando 913€ mensuales en renta.

Precio de venta: 375.000€

Rentabilidad bruta estimada: ~2,9% anual.

Ideal para inversor que busque estabilidad y rentabilidad inmediata. Contacta para más detalles o visita virtual.

Características
Precio Venta 385.000 €
Precio/m² 4.695
Año de construcción 2007
Construidos 82 m2
Útiles 69 m2
Dormitorios 2
Baños 1
Cocina Amueblada
Calefacción Individual a gas
Altura/Planta 4
Tipo de suelo Parquet
Ascensor
Aire acondicionado
Calificación Energética (E) VER
Luz
Agua

Visita Virtual

Ubicación
La dirección del inmueble es aproximada.
Escalas de eficiencia


-
-

Contáctanos

Si deseas más información sobre esta propiedad, por favor, rellena el formulario.

 Sí, he leído y/o acepto las Condiciones de uso y la Política de privacidad
Inmuebles similares:
 
330.000 €
Ref. 1240  79 m2  2  2
Piso en venta en Barcelona, con 79 m2, 2 habitaciones y 2 baños y Calefacción Individual a gas.
 
321.000 €
Ref. 1250  75 m2  3  1
Piso en venta en Barcelona, con 75 m2, 3 habitaciones y 1 baños y Ascensor.