Piso alquilado 2 hab. Rentabilidad 4,2% sin comisiones
Barcelona - REF. 1256

63 m2

2

1

3
venta: 280.500 €
Descripción

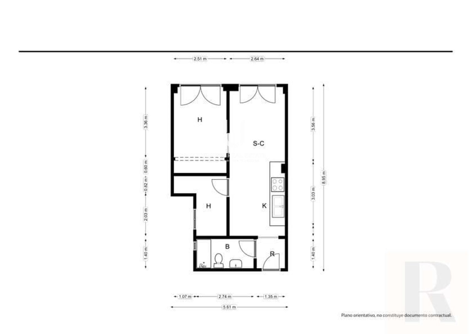
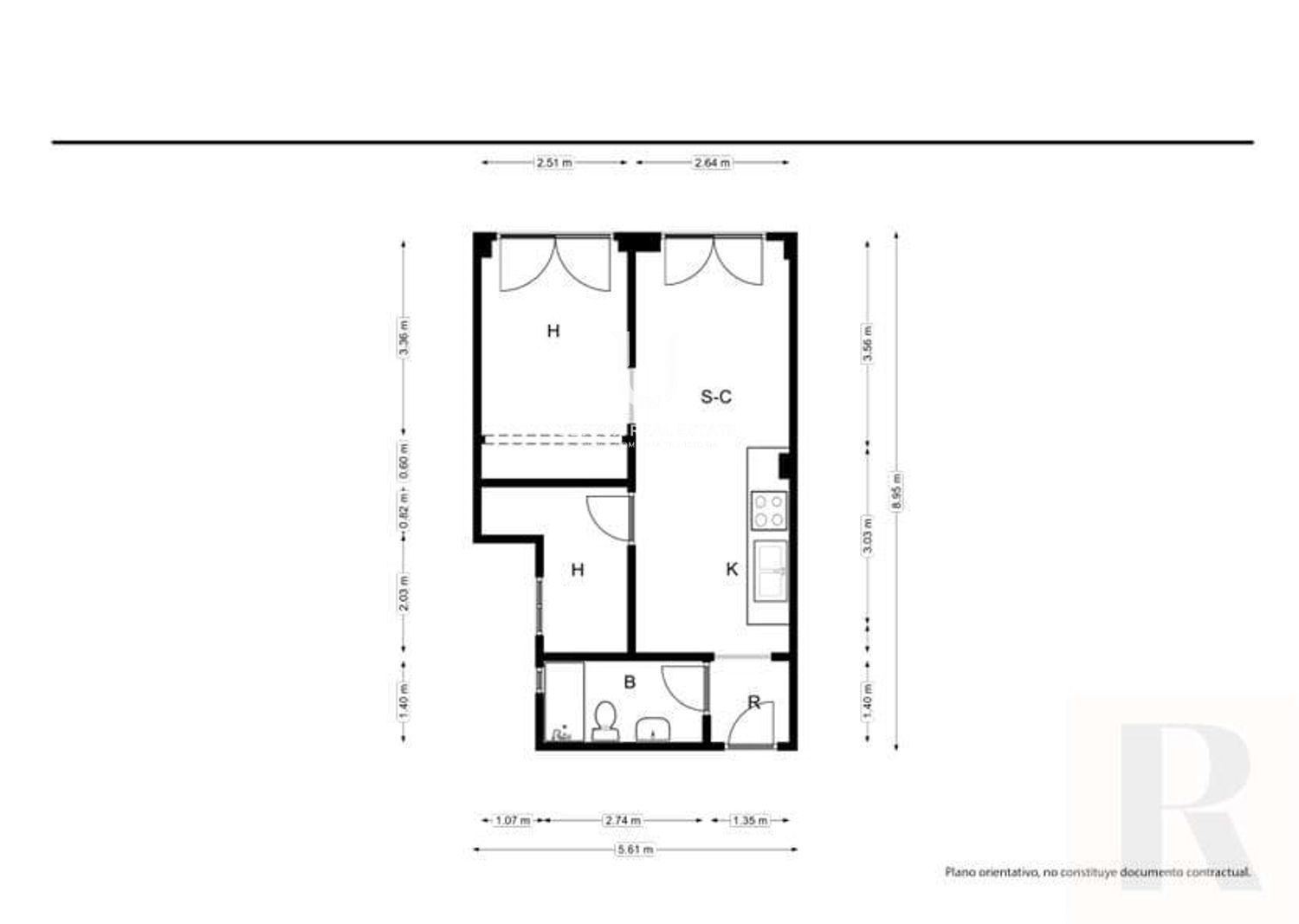
Excelente oportunidad de inversión en este piso de 62 m² de 2 dormitorios y 1 baño, ubicado en la tercera planta de un edificio residencial con ascensor en una calle tranquila del barrio de Sants.

Distribución y estado

Salón-comedor acogedor y luminoso, cocina independiente y 2 habitaciones dobles. En buen estado de conservación, listo para generar rentas desde el primer día.

Ubicación estratégica

Perfectamente comunicado en Sants-Montjuïc con metro Plaça de Sants (L1-L5) a pocos minutos, autobuses, Sants Estación cercana y todos los servicios: supermercados, colegios, centros médicos y parques.

Inversión estable a largo plazo

Contrato vigente hasta 20/10/2028 con inquilinos solventes.

Detalles financieros:

Renta actual: 875€/mes
Rentabilidad bruta anual: ~4,2%
IBI: 430,68€/año
Comunidad: 90€/mes
Basuras: 7,63€/año
Seguro impago: activo

Ideal para inversores conservadores que buscan estabilidad garantizada hasta 2028.

Características
Precio Venta 280.500 €
Precio/m² 4.452
Año de construcción 2007
Construidos 63 m2
Útiles 50 m2
Dormitorios 2
Baños 1
Cocina Amueblada
Calefacción Eléctrica
Terraza
Altura/Planta 3
Estado Reformado
Tipo de suelo Parquet
Ascensor
Aire acondicionado
Calificación Energética (D) VER
Luz
Agua

Visita Virtual

Ubicación
La dirección del inmueble es aproximada.
Escalas de eficiencia


-
-

Contáctanos

Si deseas más información sobre esta propiedad, por favor, rellena el formulario.

 Sí, he leído y/o acepto las Condiciones de uso y la Política de privacidad
Inmuebles similares:
 
330.000 €
Ref. 1240  79 m2  2  2
Piso en venta en Barcelona, con 79 m2, 2 habitaciones y 2 baños y Calefacción Individual a gas.
 
321.000 €
Ref. 1250  75 m2  3  1
Piso en venta en Barcelona, con 75 m2, 3 habitaciones y 1 baños y Ascensor.